所属分类:振动筛系列
Product introduction
产品介绍
产品简介
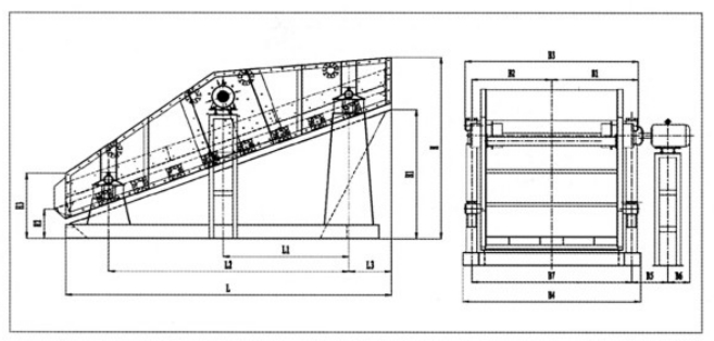
JYA(K)型圆振动筛运动轨迹为圆,主要用于冶金选矿、选煤、建材、电力等行业干式物料的分级作业。该系列圆振筛采用目前国内先进的环槽铆钉铆接新工艺。大游隙轴承脂润滑振动器,具有结构简单,坚固耐用,噪声低、安装、维修方便等优点。

工作原理及结构特点
JYA(K)型圆振筛是利用普通电机外拖动振动器,使筛体沿激振力方向作周期性往复振动,物料进入筛体后,受力向出料端运动,从而达到筛分目的。
JYA(K)型圆振筛由振动源、筛体、筛网、减振装置和底托组成,筛机侧板采用优质钢板制作而成,侧板与横梁、激振器底座采用高强度螺栓或环槽铆钉连接,结构合理,坚固耐用。
外形示意图

安装与调试
1.安装前应参照安装图制作混凝土基础,预埋地脚螺栓或预埋钢板平面度误差≤3mm,。
2.安装完毕,检查调整各组弹簧,每个支撑位置受力均匀,电动机轴线应低于激振器轴线3-5mm,对称点支撑弹簧应水平等高(误差≤3mm)。
3.筛机各部位应牢固连接,所有螺栓开机前应紧固一次。
4.调整激振器的偏心块夹角,可以调整激振力,从而调整筛机振幅。5.与其他相邻物之间的距离不小于100mm。
使用与维护
1.筛机启动前,应检查各紧固件螺栓有无松动,如有松动应紧固。
⒉.筛机空载运行4-6小时,要求筛体振动平稳,无横摆及异常声音,激振器轴承温度≤75℃。3.空转运行后,应将各部位螺栓重新紧固。
4.正常运转后,定期检查各紧固件螺栓紧固状况。
5.经常检查易损件,对已损坏或失去弹性的减震弹簧要及时更换。筛网发生松裂或磨损,应及时紧固或更换。
6.振源的调整、使用和维护,请参照振源使用说明书。(振动电机使用3个月后加油一次,激振器每月加油一次,半年小修一次,一年大修一次)。
7.停车前应先停止给料,待筛面物料筛分完后再停车。


Customer case
客户案例
Relevant news
相关新闻
-
08-17
积极维护防汛救灾网络秩序倡议书近期,东北、华北、黄淮等地出现极端降雨,多地出现居民被困和人员伤亡情况,全国各地救援力量迅速集结,全力投入防汛救灾工作。在当前全国齐心聚力、携手救灾的特殊时期,... -
11-20
振动筛的大好场景!国内的振动筛行业可谓是风生水起,行业内一派火热景象。别的不说,就拿行业消息来讲:鞍重股份高性能大型振动筛入围国家科技技术发明奖;中联重科首台4GLS2530...
-
11-20
振动筛为什么能取代摇动筛?振动筛在行业初期也遇到过很多强有力的竞争对手,就像摇动筛,也风靡一时。今天,我们带你一起探讨一下,振动筛为什么取代摇动筛? 摇动筛是以曲柄连杆机构作为传动...
